Modelos de casas sostenibles y listas para vivir.

Modelo  TRONCO

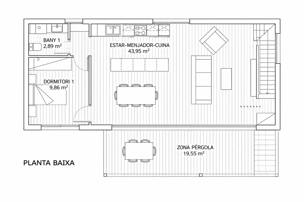
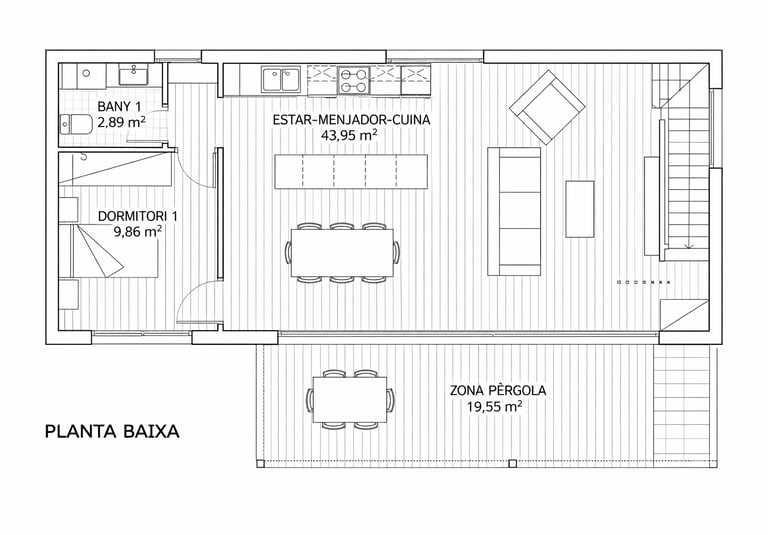
Esta casa de dos plantas, cuenta con más superfície, ya que son 144 metros cuadrados que evocan la fuerza y la estabilidad de un tronco robusto. Perfecta para familias que requieren más espacio y comodidad ya que dispone de amplias áreas comunes y opciones de distribución flexibles. En la planta baja encontrarás el comedor con una cocina abierta al salón, una habitación doble, un baño con ducha y una zona de lavadero.  En la primera planta tenemos  3 habitaciones, la principal con su vestidor y baño en suite y las otras dos con su baño.

Todas nuestras casas cuentan con certificación de la categoría A, son el resultado de un profundo compromiso con el medio ambiente y la calidad de vida de nuestros residentes. 

Precio casa Tronco 144    247.000€

(Este precio incluye el Proyecto técnico de arquitectos, aparejadores y dirección técnica de obra)

*Acabados incluidos en el precio:

  • Revestimiento exterior de pintura (color a escoger)

  • Tejado inclinado de teja color terracota

  • Porche de madera adosado a la fachada

  • Suelos porcelánicos en acabado símil madera o piedra

  • Cerramientos con rotura de puente térmico 3+3/12/4

  • Incluye persianas en todos los cerramientos

  • Carpintería con puertas de interior lacadas

  • Iluminación interior con focos led empotrables

  • Climatización por conductos Aerotermia (frío - calor) + ACS

  • Cocina equipada con encimeras de cuarzo compacto

  • Incluye inducción, horno, campana y fregadero doble

  • Puerta de entrada blindada con triple cerradura

*Cualquier modificación se puede aplicar con su coste correspondiente.

Esta casa es totalmente personalizable y ampliable, puedes añadir un lavadero o garaje, quizás te interessa poner un revestimiento de piedra en el exterior, o modificar algun acabado interior según tus preferencias, te lo presupuestaremos a parte para que puedas decidir.

Consúltanos todo lo que quieras saber acerca de nuestra Casa Tronco, la más grande de los tres modelos de Suite Maison, con unos buenos acabados y a un precio excepcional. 

Compromiso con el entorno

En Suite Maison, creamos casas sostenibles y funcionales, con materiales de primera y entrega llave en mano.

Personalización y Flexibilidad

Además de nuestros modelos estándar, ofrecemos Maison Haus, una casa con modificaciones y personalizada al deseo del cliente. Esta opción sigue nuestra filosofía de construcción, pero puede comportar cambios en el precio y el tiempo de entrega para adaptarse a tus preferencias específicas.

Seleccionar una casa de SuiteMaison no solo significa optar por un hogar de calidad, sino también por un estilo de vida sostenible y adaptado a tus necesidades. Contáctanos hoy para comenzar tu viaje hacia el hogar de tus sueños con SuiteMaison. ¡Tu hogar ideal está a solo un paso!

bird's-eye photography of boat near rock formations
bird's-eye photography of boat near rock formations
Mi casa es perfecta y cómo siempre había soñado

José Luis

"